Параметры поверхности определяются только для случая очистки абразивоструйным методом поверхности, ранее неокрашенной или после полного удаления прежних покрытий.
Шероховатость может быть оценена различными методами и измерительными средствами, наиболее распространенными из которых являются:
- компараторы (эталоны сравнения) по ИСО 8503-2;
- микроскоп по ИСО 8503-3;
- профиломер по ИСО 8503-4;
- метод реплик по стандартам ИСО 8503-5;
- электронные приборы.
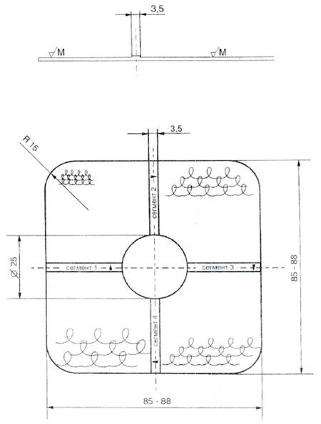
Наиболее простым и доступным методом оценки шероховатости является использование компараторов ИСО, технические характеристики которых соответствуют стандарту ИСО 8503-1. Компараторы используются двух типов и представляют собой плоские пластины, разделенные на четыре сегмента с различной строго калиброванной шероховатостью (рис.1).

Рис.1. Эталон сравнения (ИСО 8503) для оценки шероховатости поверхности после абразивоструйной очистки.

Рис.2. Эталон сравнения GRIT (ИСО 8503).
Компараторы требуют осторожного обращения. При обнаружении износа или в случае сомнения в оценке шероховатости поверхности их следует ликвидировать или подвергнуть повторной калибровке согласно стандартам ИСО 8503-3 или ИСО 8503-4. Компаратор считается калиброванным при условии, что номинальные величины и допуски для всех профилей не выходят за пределы, указанные в ИСО 8503-1.
Если визуальная оценка чистоты поверхности компаратора не соответствует степеням Sa1/2 или Sa3 по ИСО 8501-1, то он подлежит уничтожению.
Стандарт ИСО 8503-2 регламентирует визуальный и осязательный метод оценки шероховатости. Процедура определения шероховатости исследуемой поверхности включает в себе следующие действия контролера:
1) Очистка поверхности от пыли и мусора.
2) Подбор компаратора (S или G), соответствующего профилю исследуемой поверхности.
3) Сравнение шероховатости исследуемой поверхности поочередно с четырьмя сегментами компаратора. При необходимости для этого можно использовать лупу с увеличением не более 7. Сравнение производится при расположении компаратора рядом с исследуемым участком поверхности.
4) Определение группы шероховатости исследуемой поверхности:
- тонкая - шероховатость между сегментами 1 и 2, но ниже, чем сегмента 2.
- средняя – шероховатость между сегментами 2 и 3, но ниже, чем сегмента 3.
- грубая – шероховатость между сегментами 3 и 4 , но ниже, чем сегмента 4.
Если шероховатость исследуемого участка ниже нижней границы группы “тонкая”, то она оценивается как “очень тонкая”, если шероховатость выше верхней границы группы “грубая”, то она оценивается как “очень грубая”.
Если визуальная оценка затруднена, то может быть использована осязательная оценка путем легкого “царапания” внутренней поверхностью ногтя пальца поочередно исследуемой поверхности и сегментов компаратора.
В случае сомнений в результате визуальной оценки шероховатости параметры шероховатости могут быть оценены в соответствии со стандартами ИСО 8503-3 (метод с использованием микроскопа) или ИСО 8503-4 (применение прибора с мерительным штифтом).
Схема определения параметров шероховатости Ry, Ry5 и y5 показана на рис. 2 для случая использования профилометра или профилографа. При использовании микроскопа схема аналогична, но параметры будут иметь обозначения соответственно hy, hy5, y5.

Рис.2. Схема определения параметров шероховатости.
В практике абразивоструйной подготовки поверхностей и контроля шероховатости пока еще часто используются прежние параметры шероховатости Ra, Rz Rmax по стандарту ИСО 468, разработанному ранее в основном для применения в машиностроении. В принципе можно пользоваться и этим стандартом, хотя он менее удобен; в этом случае параметр Rz соответствует параметру Ry5 по ИСО 8503.